Пропонується до передачі в оренду нежитлове приміщення комунальної власності Бориспільської міської ради, площею 41,2 кв. м., за адресою: Київська область, місто Бориспіль, вулиця Бежівка, 1.
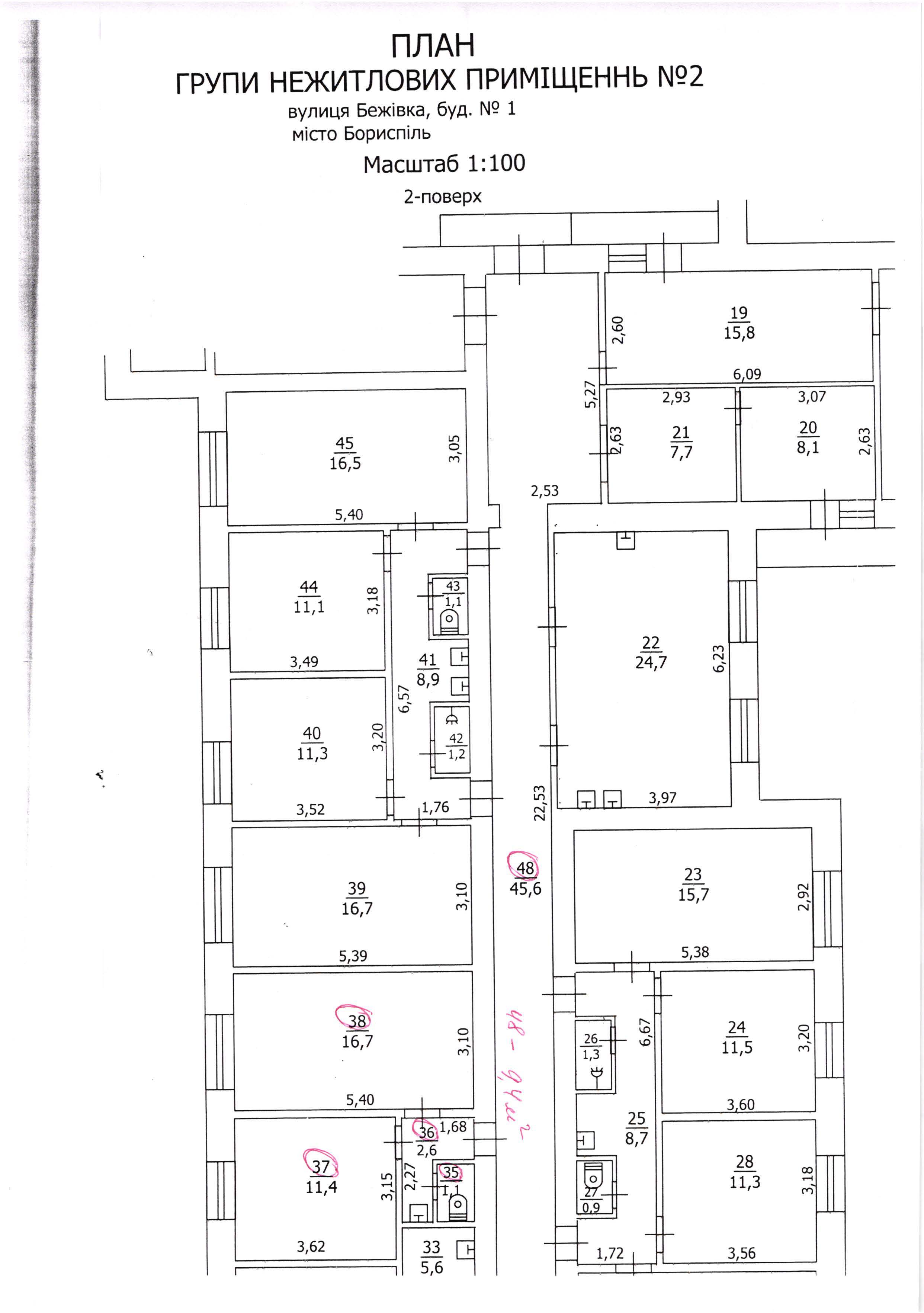
Нежитлове приміщення площею 41,2 кв. м розміщене на другому поверсі будівлі гуртожитку за адресою: Київська область, місто Бориспіль, вул. Бежівка, 1. На поверховому плані кімнати № 37 площею 11,4 кв. м, № 38 – 16,7 кв. м, кімната-коридор № 36 – 2,6 кв. м, кімната-санвузол № 35 – 1,1 кв. м, місця загального використання: частина кімнати-коридору № 48 – 9,4 кв. м. Вхід до приміщення спільний з іншими орендарями. Дві окремі кімнати, а також окремо влаштований санвузол та раковина. Приміщення має задовільний стан, але потребує проведення поточного ремонту. Наявне підключення до мереж централізованого опалення, електропостачання, централізованого водопостачання. Пропонований строк оренди - 5 років.
Ознайомитися з об’єктом оренди можна за посиланням: https://auction.e-tender.ua/obiekty-orendy/RGL001-UA-20231019-39556 та безпосередньо за місцем його розташування у робочі дні, попередньо узгодивши з представником головного управління житлово-комунального господарства виконавчого комітету Бориспільської міської ради годину огляду об'єкта.
Робочі дні: понеділок-четвер з 08:00 до 17:00, п’ятниця з 08:00 до16:00.
Адреса: Київська обл., м. Бориспіль, вул. Київський шлях, 72, кабінет № 216.
Контактна особа: Наталія Парчинська, тел. (04595) 5-58-34, Вайбер 063-221-16-59, е-mail: Ця електронна адреса захищена від спам-ботів. Вам потрібно увімкнути JavaScript, щоб побачити її..




















